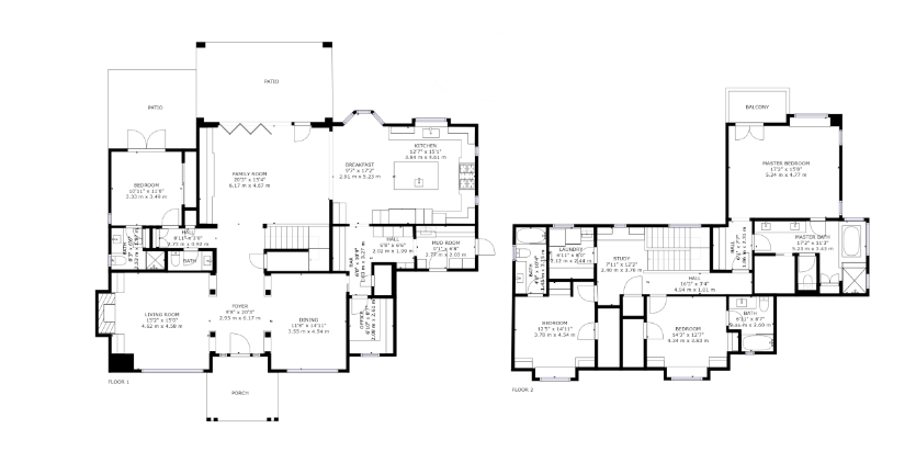
Αποτύπωση & Κατόψεις Χώρων
Δημιουργούμε λεπτομέρειες κατόψεις και επαγγελματικά σχέδια αποτύπωσης χώρων σε ελάχιστο χρόνο για οποιοδήποτε project. Έχουμε στόχο την άριστη συνεργασία με επαγγελματίες του χώρου, αρχιτέκτονες, πολιτικούς μηχανικούς και διακοσμητές.
Επίσης παρέχουμε μαζι με τις κατόψεις και τρισδιάστατα μοντέλα 3D που σας δίνουν τη δυνατότητα να σχεδιάσετε περαιτέρω το χώρο ενώ πλέον, στην τελική τους μορφή, αναδεικνύουν την πολυμορφικότητα και λειτουργικότητά του.
Ένα επιπλέον πλεονέκτημα που υπάρχει, ειναι οτι η μελέτη των αρχικών τρισδιάστατων μοντέλων συνδυαστικά με τις κατόψεις, παρέχουν μια συνολική εικόνα η οποία σας δίνει τη δυνατότητα να σχεδιάσετε μία εκδήλωση που θα θέλατε να διοργανώσετε στον χώρο σας.
